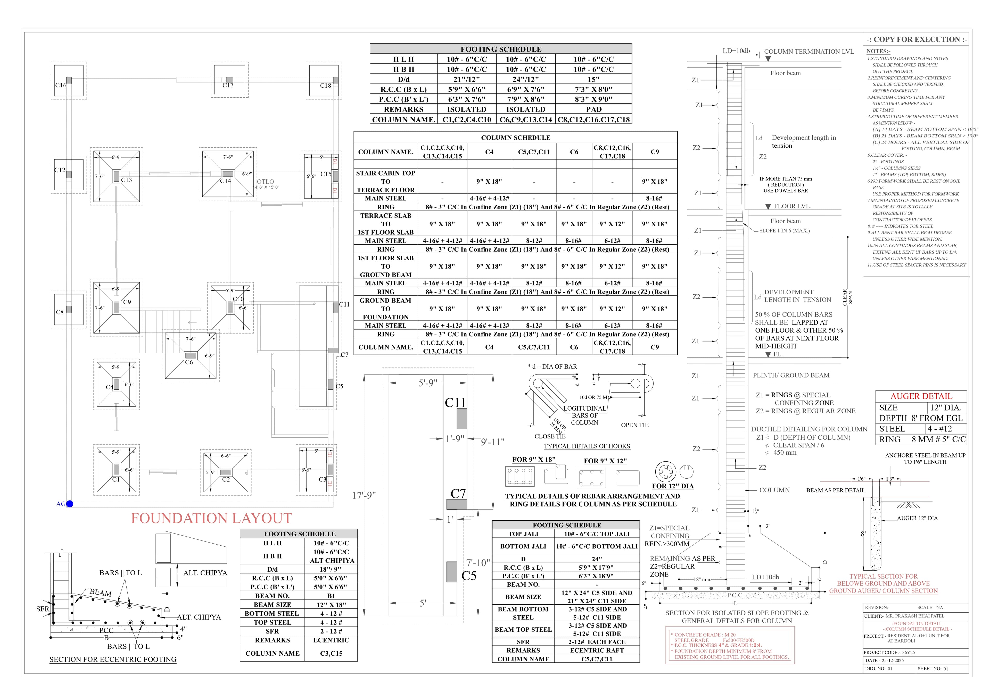
3 Client Residential Units - Mahuva, Bardoli, Nizar
Residential projects for three clients at Mahuva, Bardoli, and Nizar including G+1 and G+2 units with structural design services.





Mahuva, Bardoli, Nizar (Tapi)
Residential projects for three clients at Mahuva, Bardoli, and Nizar including G+1 and G+2 units with structural design services.




